YEAR: Spring 2015
SIZE: 4800 SF
LOCATION: Chinatown , NY
Foot on the Ground addresses the acute housing shortage facing New York City. Unlike other housing developments in NYC, this project is envisioned to serve the largely itinerant population of undocumented workers in Chinatown. Using a series of ready-made construction elements sourced from the Chinese commerce site Alibaba.com, an incredibly low cost alternative to traditional housing types is created.
The building is created with the full knowledge that the space it sits on is more valuable than the rent revenue could ever generate. The extreme temporality and low cost of the project allows for the occupant to finance the project with limited income and resources.
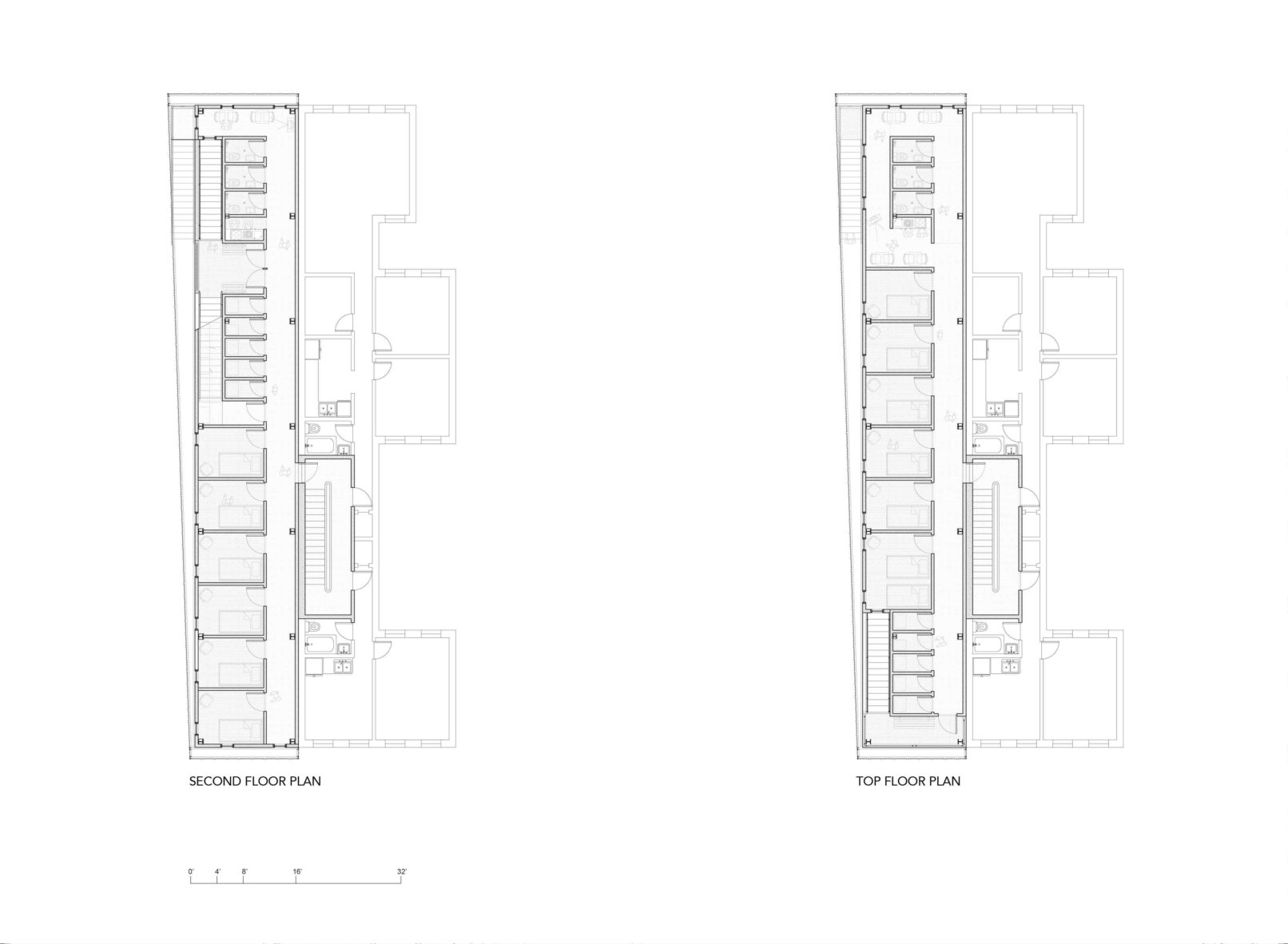
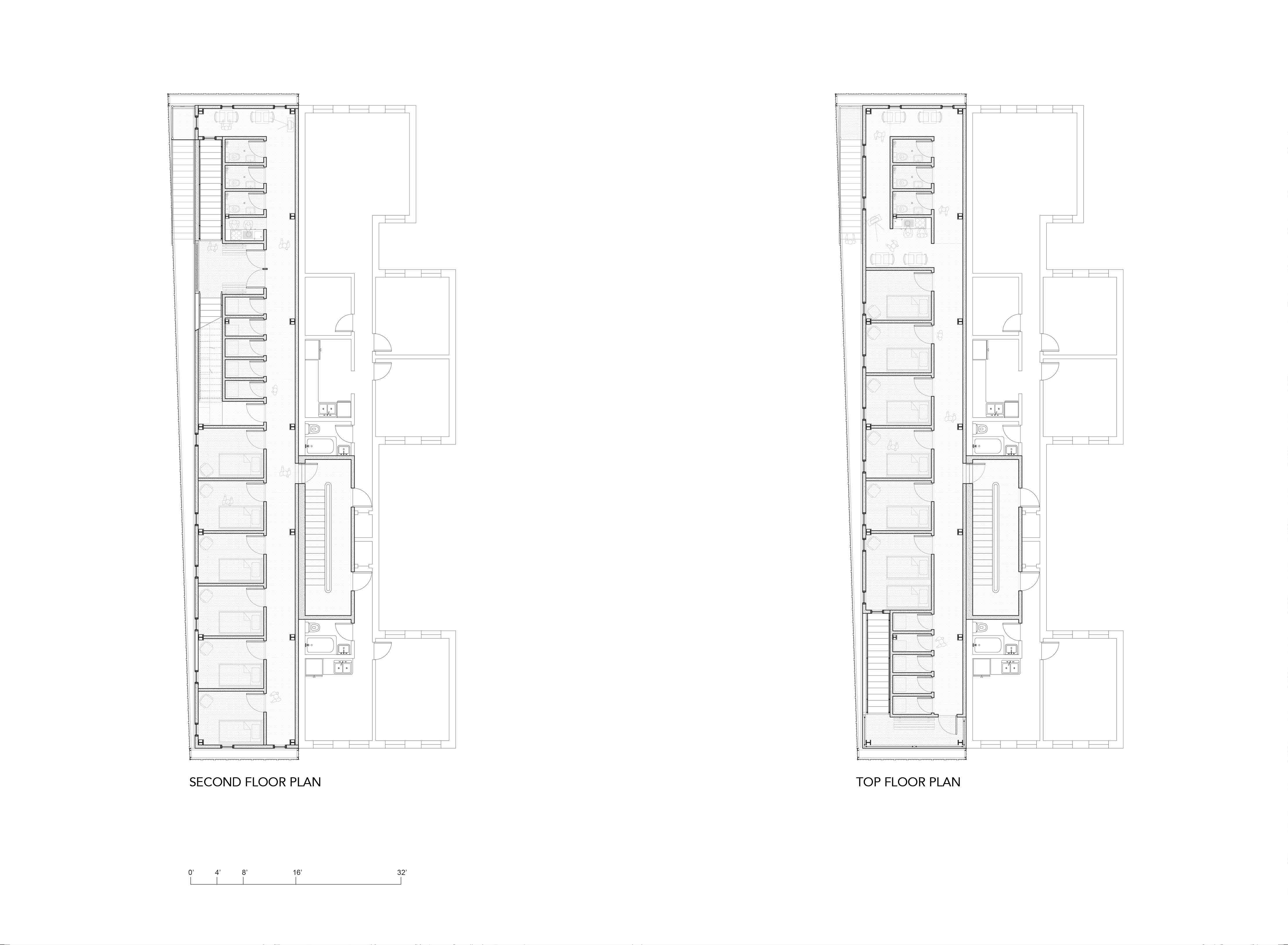
This project can be deployed in underutilized spaces created from parking lots and infrastructural leftovers. The site chosen for the initial prototype is located near the west Broadway mall. It is a single resident occupancy building. This is a nearly extinct housing type in New York City, but it once formed the backbone of housing for the urban poor. Unregistered migrants travel cyclically for employment and, when returning to New York, this housing fill a need for cheap secure rooms.
The building form is stacked 100 SF rooms that are accessed through an external stair carved into the exterior of the building. Emergency egress is handled through a connection to the host building’s fire stairs. The ground floor houses storage containers which can also double as informal storefronts. The building exterior is clad in permeable steel shutters which has billboard advertisements adhered to it. These advertisements further offset the building’s operational costs. Communal bathrooms and a small kitchen are located on each floor for tenant’s use. The plumbing facilities are stacked in a column underneath an array of solar heaters located on the roof.















