YEAR: Spring 2018
SIZE: 8000 SF
LOCATION: Brooklyn Heights , NY
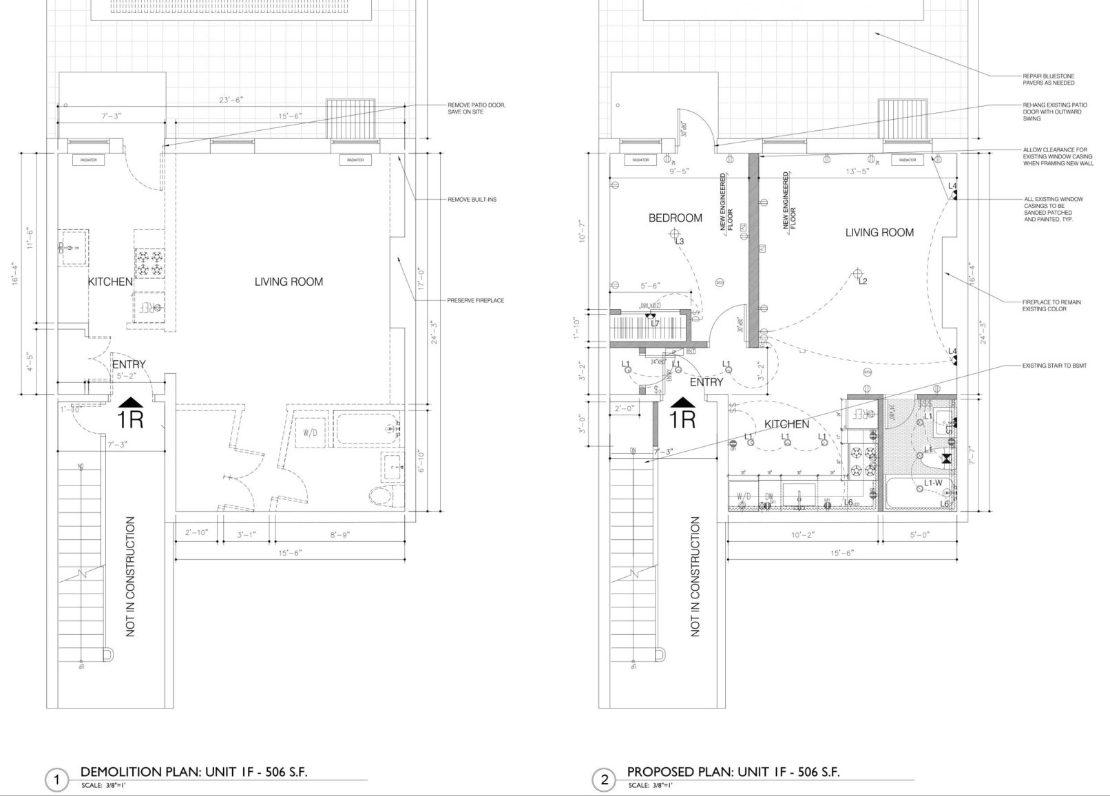
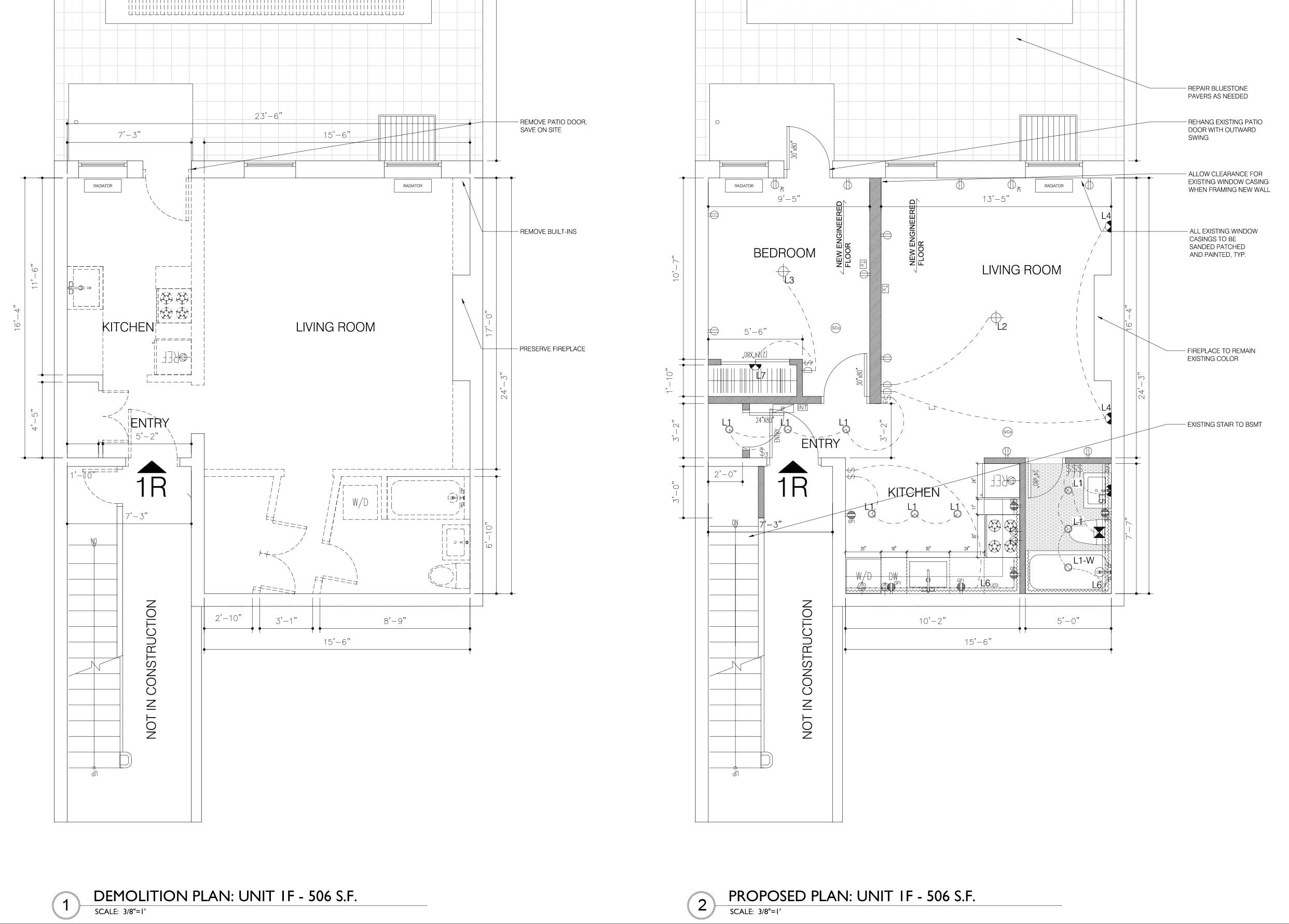
The Henry Street project is a prewar townhome that was divided into ten one-bedroom units with amenities in the basement. The individual units, originally organized as studios, received total renovations and a were redesigned as one bedroom units. This was accomplished by the relocation the kitchen. The new layouts now feature a full kitchen with upgraded appliances and a additional washer/dryer closet. In the bathroom, the details and fixtures are simple and match with the era of the building’s construction. The original entry doors to all the units were out of current code and in bad repair, to fix this new steel doors were modified with custom moulding to match the originals and adhere to current standards.
The common areas and hallways are where the most dramatic change can be seen. The original staircase featured wrapping wood banisters and elaborate plaster work. Since much of this was in poor repair, the stairs were carefully restored and original details were carefully preserved. A new geometric hex pattern tile was laid on the ground floor and a low pile chevron carpet was installed on the upper floors. Because the plaster work was delicate, we wanted to disturb the ceiling and walls as little as possible. To accommodate this restriction custom lighting was supplied by Andrew Neyer that allowed for a single light point and varied ceiling heights. The walls were restored with updated brass sconces and wainscoting along with replaced doors that were closely matched to the original assemblies. Finally, the common areas were finished up with a soft two tone paint scheme that maximizes light in the windowless halls.







